U gebruikt een verouderde internetbrowser.
We raden u aan om de meest recente internetbrowser te installeren voor de beste weergave van deze website.
Een internetbrowser die up to date is, staat ook garant voor veilig surfen.

Helaas, dit pand is verhuurd

9000 Gent

Omschrijving

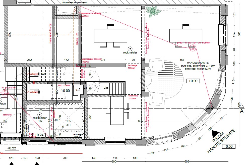
Karaktervolle handelsruimte met 184 m² oppervlakte in de Kortrijksesteenweg.

Karaktervolle handelsruimte met 184 m² oppervlakte in de Kortrijksesteenweg.

Dit opvallend hoekpand heeft een totale renovatie achter de rug in het jaar 2022-2023. Alle technieken, alle leidingen,.. zijn nieuw. Zijn opvallende ligging nabij centrum en station zijn alvast troef voor uw toekomstig zaak!

Het gelijkvloers bevat 2 aparte toiletten, warmtepomp (type lucht lucht met airco functie), voldoende stopcontacten, ventilatie, internet en voldoende plafond hoogte.

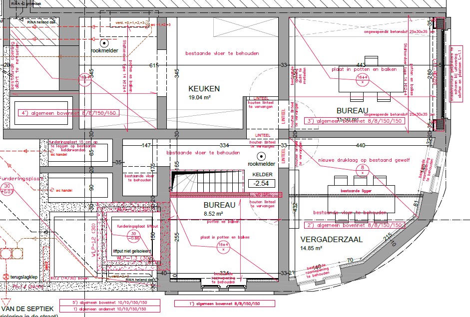
Deze ruimte is volledig onderkelderd. In de kelder is er een keukenruimte en 3 aparte zalen/burelen.

Deze som is te vermeerderen met BTW en de jaarlijkse grondlasten.

PLUSPUNTEN:
+ Opvallende hoekligging
+ Hoogwaardige renovatie
+ ingerichte kelder


Niet gevonden wat u zocht? Schrijf u dan vrijblijvend in op onze nieuwsbrief en blijf op de hoogte van ons recentste aanbod.
Schrijf u in
Terug naar boven
Sluit menu vastgoed Norman